︎
30 Warren
New York, USA (2014-2020)
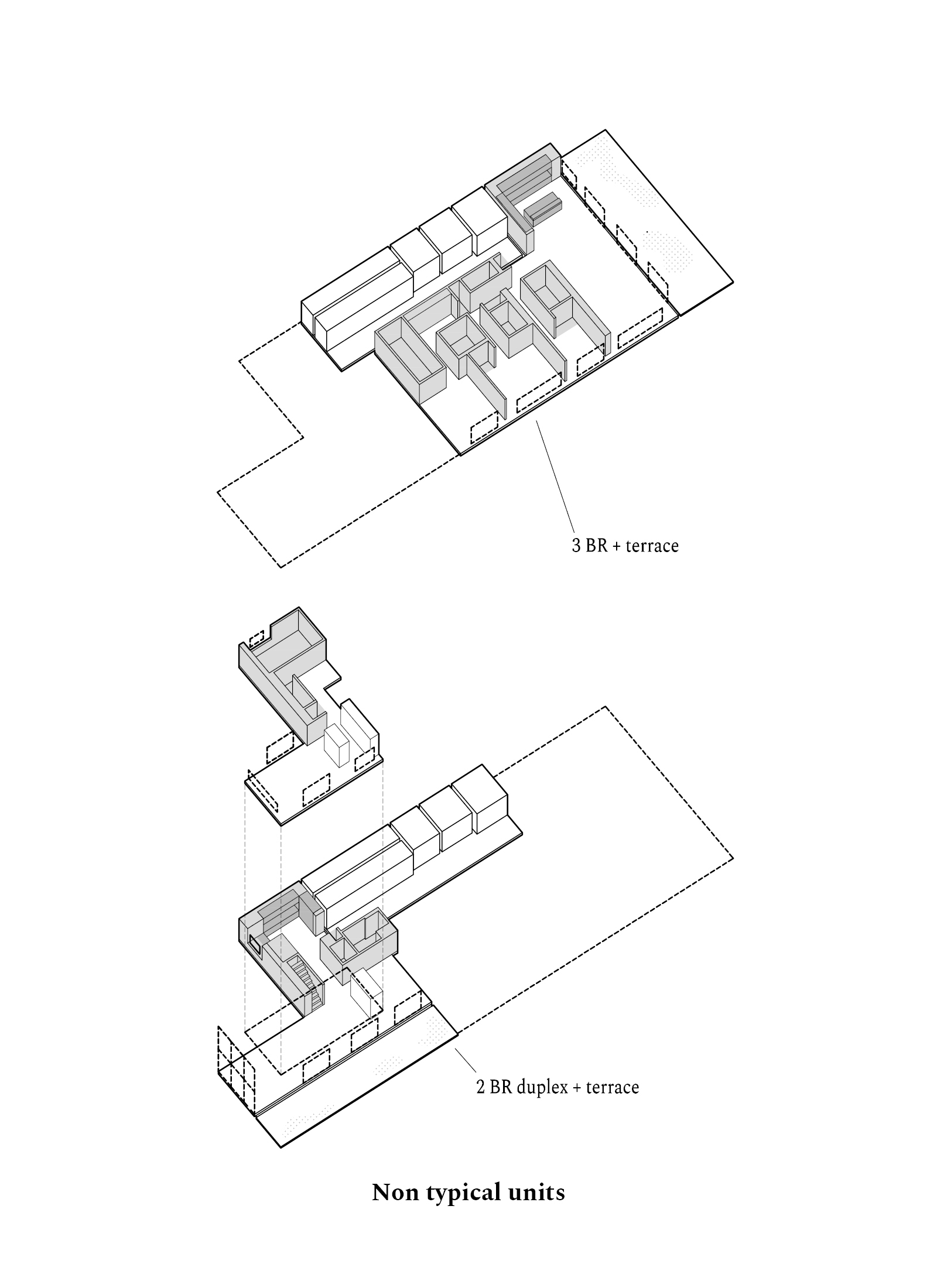
Residential condominium in Tribeca
Post-Office Architectes
Line Fontana, François Leininger et David Fagart
Architect of Record: HTO Architects, PLLC
Photos Roland Halbe
30 Warren
New York, USA (2014-2020)
Residential condominium in Tribeca
Post-Office Architectes
Line Fontana, François Leininger et David Fagart
Architect of Record: HTO Architects, PLLC
Photos Roland Halbe